Tai skaitā PVN
Nosūces ventilators V80
To izmanto, lai ierobežotu dūmu noplūdi katlu telpā, pievienojot kurināmo VIGAS katlam.
Ventilators V80 - paredzēts VIGAS 40, 60, 80, 100 un 26DPA katliem
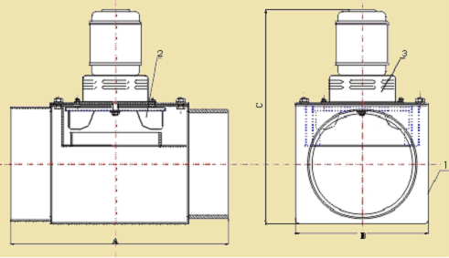
Ventilatora korpuss (1) ir metināta konstrukcija, kas izgatavota no 2,5 mm bieza lokšņu metāla. Ieplūdes sprausla ir paredzēta nosūces ventilatora montāžai pie katla, izplūdes sprausla ir paredzēta montāžai skursteņa caurulē. Lāpstiņritenis (2) ir tieši piestiprināts pie elektromotora (3) vārpstas, ko atdzesē dzesēšanas ritenis. Ventilatora virsma ir apstrādāta ar karstumizturīgu pārklājumu.
Ventilatora novietojums
Ventilators tiek novietots uz katla izplūdes skursteņa sprauslas. Iesakām novietot ventilatora korpusu tā, lai motora ass atrastos horizontālā stāvoklī. Ventilatora komplektā ietilpst kārba ar iedarbināšanas kondensatoru, kas ir piestiprināts pie katla vertikālās sienas, lai vadi nesaskartos ar skursteņa cauruli. No kondensatora kārbas piegādātais vads tiek savienots ar AK4000 vadības bloku spaiļu blokā, kas apzīmēts ar "Nosūces ventilators". Elektroinstalācijas shēmu var atrast VIGAS katla lietošanas instrukcijā. Pēc elektriskā pieslēguma veikšanas AK4000 vadības blokā ir jāiestata vērtība "jā" saskaņā ar AK4000 lietošanas instrukcijas 13.1.4. nodaļu.
Pamatojoties uz datiem, ko norādīsiet Norēķinu informācijā, jums tiks atsūtīs precizēts rēķins
Ja ir jautājumi droši rakstiet vai zvaniet
